Trójmiejska Korporacja Nieruchomości

WyszukiwanieWyszukiwanie

Ogłoszenie nr KO07110

  • Mieszkanie
  • Sopot Dolny
  • 1 180 000 zł

Opis oferty

Nieruchomość:
Mieszkanie
Typ transakcji:
Sprzedaż
Rynek:
Wtórny
Cena:
1 180 000 zł   14 550 zł/m2
Cena najmu:
690.00
Opłata dodatkowa:
690.00
Kraj:
Polska
Województwo:
Pomorskie
Powiat:
Sopot
Gmina:
Sopot
Miejscowość:
Sopot Dolny
Ulica:
3 MAJA
Powierzchnia całkowita:
81.1 m2
Forma własności:
Własność
Liczba pięter:
3
Piętro:
1
Kuchnia:
Tak
Liczba pokoi:
4
Rok budowy:
1910 r.
Typ budynku:
Kamienica
Stan techniczny:
Do remontu
Opiekun:
Izabela Uberhuber
Telefon do opiekuna:
602 652 266
Nr licencji:
895
Email do opiekuna:
izabela.uberhuber@kontraktsopot.pl

Opis oferty

Wyjątkowe mieszkanie w Dolnym Sopocie przy ul. 3 Maja, na pierwszym piętrze kamienicy, z pięknym balkonem, położone zaledwie 3 minuty spacerem od plaży.

LOKALIZACJA:
Mieszkanie znajduje się w kamienicy z 1910  roku, położonej zaledwie 300 metrów od jednej z najpiękniejszych części sopockiej plaży. Dojście do
plaży zajmuje 3 minuty, a do  Monciaka  (słynnego deptaka, pełnego restauracji, klubów i kawiarni) i molo wystarczy ok. 10-minutowy spacer.
Ulica 3 Maja, przy której znajduje się budynek w drugie linii zabudowy, przeszła gruntowną przebudowę zakończoną wiosną 2023 r. zyskując dodatkową zieleń oraz ścieżkę rowerową po obu stronach ulicy.
Lokalizacja idealna pod inwestycję lub dla osób poszukujących mieszkania dla siebie w jednej z najlepszych lokalizacji w Polsce.


MIESZKANIE:


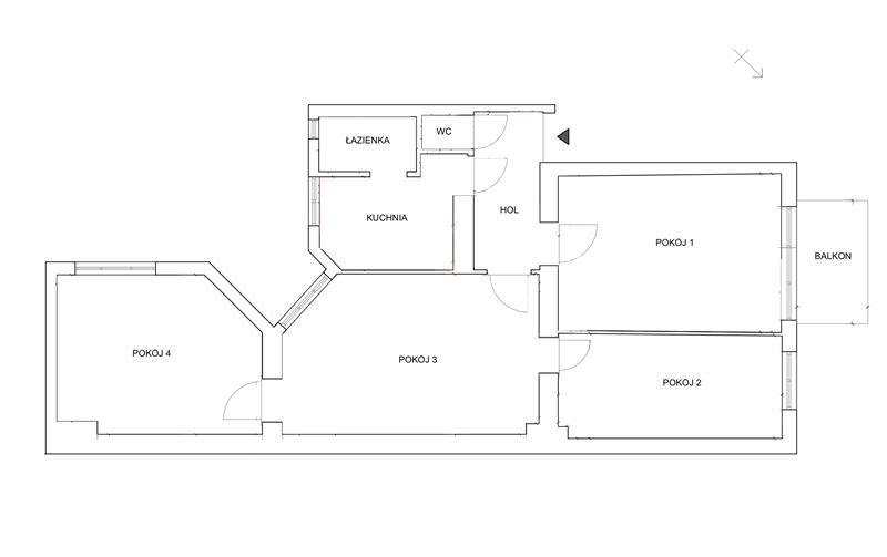
W skład mieszkania wchodzą:
- 4 pokoje z dużymi oknami,
- kuchnia z oknem,
- osobne WC,
- łazienka z oknem,
- korytarz,
- duży balkon wychodzący na podwórze z piękną, z ozdobną balustradą

Mieszkanie posiada oryginalne, bardzo dobrze zachowane drewniane podłogi oraz stolarkę drzwiową, które nadają mu niesamowitego charakteru.

Do mieszkańców kamienicy należy frontowe podwórze z nową furtką, bramą wjazdową oraz miejscami postojowymi, a także cichy, ogrodzony zielony teren z tyłu budynku, dostępny tylko dla właścicieli kamienicy.

Do mieszkania przynależy duża piwnica o pow. 15,36 m2 wpisana do księgi wieczystej.

Księga wieczysta bez obciążeń, działy III i IV wolne od wpisów.

Udział w działce o pow. 588 m2  i częściach wspólnych budynku wynosi 192/1000 części.

Opłaty administracyjno-eksploatacyjne wraz z funduszem remontowym ok. 690 PLN plus zużycie wody i śmieci.

Niewątpliwym atutem mieszkania jest jego lokalizacja oraz układ pozwalający zaaranżować go na potrzeby kilkuosobowej rodziny.


Mieszkanie wymaga remontu, co daje mu możliwość zmiany układu oraz dowolnej aranżacji wnętrza, w zależności od gustu nowego właściciela.

Cena do negocjacji.


Zainteresowane osoby zapraszamy na prezentację!

 



Charakterystyka:

Balkon: Balkon, Umeblowanie: Nie, Gaz: (Brak informacji), Kanalizacja: (Brak informacji), Garaż: Brak, Woda: (Brak informacji), Ogrzewanie: Gazowe, Winda: Nie,